【売土地】広島県尾道市高須町 残り4号地、5号地のみ!

目次
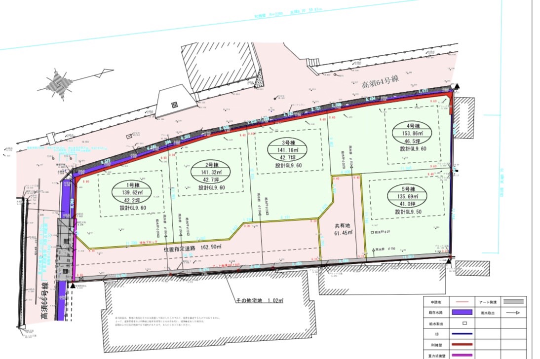
尾道市高須町
売土地 物件概
| お問い合わせ番号 | 132 |
| 所在地 | 尾道市高須町3813-2付近 |
| 価格 | 4号地 1,300万円 5号地 1,150万円 |
| 土地面積 | 135.69㎡〜153.86㎡/41坪〜46.5坪 |
| 用途地域 | 第一種住居地域 |
| 都市計画 | 市街化区域 |
| 容積率 | 200% |
| 建蔽率 | 60% |
| 校区 | 高須小学校・高西中学校 |
| 土地権利 | 所有権 |
| 地目 | 宅地 |
| 建築確認番号 | – |
| 引渡日 | 相談 |
| 取引態様 | 専任媒介 |
| Point | ☑建築条件なし🏡✨ ☑コンビニやスーパーなども近くて便利! ☑西藤インター近くで高速のアクセスもバッチリ🛣️ ☑東尾道駅も近くで利便性GOOD! |
| 周辺環境 | 🛒ハローズ東尾道店・・車で3分(1,300m) 🏪ファミリーマート高須店・・・車で1分(220m) 🏥加納内科消化器科・・・車で2分(350m) 🏫ゆずっこ保育園・・・車で2分(850m) 🏫高須小学校・・・徒歩22分(1,300m) 🏫高西中学校・・・徒歩15分(850m) |
-
URLをコピーしました!









